architektur
leistungen
kontakt
büroprofil
datenschutz
impressum
werkstift/architekten
architektur
leistungen
kontakt
büroprofil
datenschutz
impressum

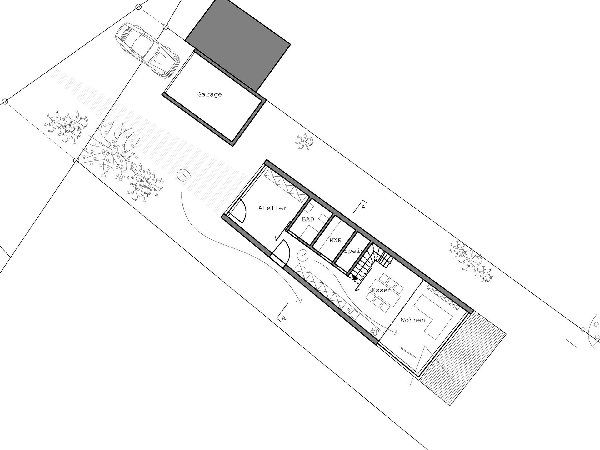
nachverdichtung mit einem atelierwohnhaus

werkstift/ architekten - sebastian böse m.a. architekt - marienplatz 18 - 86956 schongau - 08861 2266457 - werkstift@werkstift.de

Wir verwenden Cookies und Analysesoftware, um unsere Webseite möglichst benutzerfreundlich zu gestalten und fortlaufend verbessern zu können. Durch die weitere Nutzung der Webseite stimmen Sie deren Verwendung zu. Nähere Informationen entnehmen Sie bitte unseren Datenschutzangaben. Akzeptieren Ablehnen